Nhà phố hiện đại là xu hướng của thiết kế kiến trúc đô thị hiện nay và trong tương lai. Khi diện tích đô thị ngày một thu hẹp bởi sự gia tăng dân số, những khu đất quy hoạch liền kề cho từng hộ gia đình trở nên phổ biến hơn bao giờ hết. Căn nhà phố 4 tầng 60 m2 với một trệt, hai lầu và tầng thượng được phân chia thành nhiều khu vực chức năng để đáp ứng nhu cầu sử dụng của các thành viên trong gia đình.

Một đặc điểm cố hữu của các khu đất quy hoạch đô thị là diện tích giới hạn nên phải bố trí không gian sao cho mọi người trong nhà không chịu cảm giác gò bó, ngột ngạt. Để giải quyết vấn đề này, về vấn đề kết cấu kiến trúc, việc thiết kế cấu tạo giếng trời giữa nhà phố 4 tầng 60 m2 cũng như bố trí hệ thống cửa sổ để khai thác tối đa ánh sáng tự nhiên từ bên ngoài. Không khí cũng được lưu thông tuần hoàn, có lối vào và chiều ra để giữ sự trong lành, luân chuyển cho căn nhà.


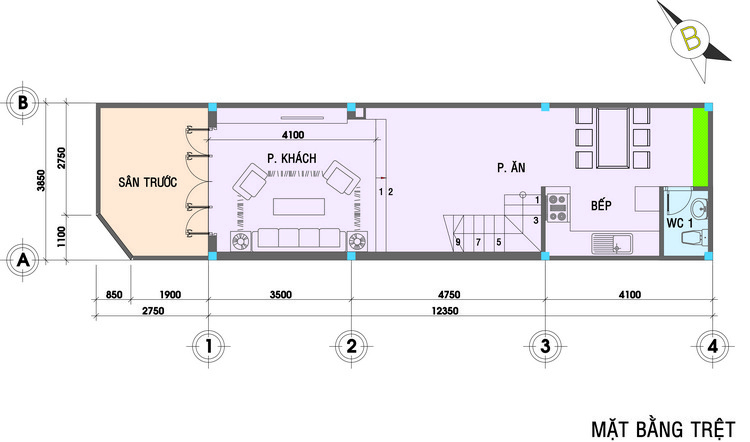
Về bố trí mặt bằng công năng nhà phố 4 tầng 60 m2, tầng trệt với tổng diện tích khoảng 60m2 với 10m2 dành cho khoảng sân trước. Diện tích còn lại là phòng khách, bếp và phòng ăn thông suốt với nhau, không ngăn cách bằng những tấm vách cứng nhắc để gia tăng cảm giác rộng rãi của không gian.


Bốn phòng ngủ của các thành viên trong gia đình được bố trí tại hai lầu trên và được ngăn cách bởi giếng trời tại cầu thang giữa nhà phố 4 tầng 60 m2. Cách bố trí này vừa đảm bảo yếu tố chiếu sáng tự nhiên, thông thoáng vừa gia tăng sự riêng tư cho các phòng ngủ cá nhân.


Khu giặt phơi được bố trí tại lầu thượng nhà phố 4 tầng 60 m2 để thuận tiện cho việc phơi quần áo. Phòng thờ luôn được ưu tiên tại vị trí này để tận dụng lợi thế không gian yên tĩnh, trong lành trên cao. Khoảng sân thượng rộng 15m2 cho những buổi họp mặt, vui chơi cuối tuần để kết nối tình cảm các thành viên với nhau.


Về nội thất, nhà phố 4 tầng 60 m2 lựa chọn sự đối lập mạnh mẽ của những gam màu trung tính đen và trắng cho những thiết bị nội thất để phù hợp xu hướng kiến trúc hiện đại cũng như tính cách mạnh mẽ, năng động của gia chủ. Trắng và đen hòa quyện trong không gian kiến trúc tạo nên vẻ đẹp vừa hiện đại, mạnh mẽ vừa sang trọng tinh tế.




Việc sắp xếp bàn ghế, hệ thống tủ kệ cũng đảm nhiệm chức năng phân chia không gian gián tiếp mà không cần các vách ngăn. Tận dụng tối đa các khoảng hẹp chân cầu thang cho một chiếc tủ hay đơn giản một chậu hoa, cây cảnh trang trí cũng sẽ mang lại cảm giác rộng rãi cho nhà phố. Đừng quên một tí sắc xanh cho cây cối ở sân trước, ban công hay những vị trí thoáng đãng trong nhà, chúng sẽ gia tăng sự dung hòa về phong thủy cho căn nhà phố 4 tầng 60 m2.


Một chút táo bạo trong việc sử dụng sắc tím sang trọng, quý phái cho gối nệm hay một bức tranh treo tường tông đen trắng cá tính là quá đủ. Cách bố trí này không làm ảnh hưởng đến giấc ngủ của gia chủ đồng thời tô điểm cho không gian phòng ngủ nhà phố 4 tầng 60 m2 thêm lãng mạn, tinh tế. Việc lựa chọn vị trí cửa sổ cũng cần được cân nhắc để tránh gây chói, khó chịu cho gia chủ vì ánh nắng.


