Công trình Nhà phố 4 tầng bán cổ điểnđược thiết kế sang trọng từ kết cấu ngoại thất cho đến việc bố trí nội thất bên trong đều vô cùng trang nhã và hòa hợp với nhau.
Trong đó, diện tích không gian nhà ở chiếm 100m2 với một tầng lửng, hai tầng lầu. Không gian phụ ở tầng trệt nhà phố 4 tầng tân cổ điển được thiết kế nhằm phục vụ cho các hoạt động vui chơi, sinh hoạt ngoài trời như tổ chức tiệc BBQ, hồ bơi, vườn rau, cây cảnh,...
Toàn bộ diện tích còn lại của tầng trệt được thiết kế cho phòng khách rộng lớn với các sảnh tầng cùng không gian thông thoáng ra khu vực sân ngoài giúp ánh sáng và không khí dễ dàng lưu thông khắp ngóc ngách nhà phố 4 tầng tân cổ điển.

Công trình Nhà phố 4 tầng bán cổ điểnđược thiết kế sang trọng từ kết cấu ngoại thất cho đến việc bố trí nội thất bên trong đều vô cùng trang nhã và hòa hợp với nhau.

Công trình Nhà phố 4 tầng bán cổ điểnđược thiết kế sang trọng từ kết cấu ngoại thất cho đến việc bố trí nội thất bên trong đều vô cùng trang nhã và hòa hợp với nhau.

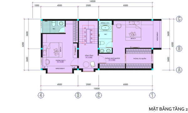
Tầng lửng nhà phố 4 tầng tân cổ điển là không gian phòng ăn và bếp nấu tách biệt giúp hạn chế bám mùi ra nội thất xung quanh. Cả 3 phòng ngủ đều được bố trí toilet riêng với cửa sổ thông thoáng. Phần còn lại ở tầng thượng là phòng tập luyện thể dục thể thao và sân phơi ngoài trời cho việc giặt ủi. Các phòng chức năng được bố trí hết sức hợp lý về mặt cấu tạo để phục vụ chức năng gian chung hay không gian cá nhân.


Về vẻ đẹp ngoại thất, mẫu nhà phố 4 tầng này lấy cảm hứng từ vẻ đẹp tân cổ điển của châu Âu với mái chóp đỏ gạch đầy truyền thống, không gian kết nối ra xung quanh bằng các ô mở đầy thoáng mát. Các ô này được che chắn ánh nắng nhờ phần mái ngói được tính toán vươn ra bên ngoài vô cùng chính xác.

Một chi tiết thông dụng với phong cách tân cổ điển chính là nét đẹp đầy sang trọng của các chi tiết tạo hình thủ công từ những gờ phào chỉ ngoại thất cho đến hệ khung, lan can với hoa văn đối xứng không hề lỗi thời của nhà phố 4 tầng tân cổ điển.

Phần sân ngoài trời được lát đá hoa cương sạch sẽ, thảm cỏ và nhiều loại cây tăng thêm nét đẹp tự nhiên và đầy sức sống cho không gian.

Một hồ bơi có mái che cho những giây phút thư giãn đầy thoải mái cho những thành viên trong gia đình. Toàn bộ khu vực hồ bơi đều được lát đá hoa cương, gạch carô tông màu trung tính, họa tiết rễ cây đơn giản và đầy sang trọng.

Toàn bộ không gian trong nhà phố 4 tầng tân cổ điển đều tuân thủ theo phong cách sang trọng và đôi chút thể hiện sự hoa mỹ, quyền lực của gia chủ. Vì vậy thảm giả lông thú, ghế sofa bọc da, gỗ nâu bóng dát vàng nổi bật là những lựa chọn phù hợp theo chủ đề này. Điểm thêm cho không gian sang trọng này là một tạo tác đèn chùm đầy lộng lẫy được cấu tạo từ ngàn viên pha lê mang đến sự phản chiếu và hiệu ứng ánh sáng đẹp mắt.

Việc lựa chọn tông màu trung tính cơ bản là trắng và đen kết hợp thêm sắc vàng hồng ánh kim sang trọng và hợp thời tạo nên không gian nội thất phòng khách, phòng ăn đầy thu hút.

Phòng ngủ nhà phố 4 tầng tân cổ điển cũng tuân thủ chặt chẽ nguyên tắc thiết kế sang trọng này với việc tiết chế tối đa các nội thất cồng kềnh, kết hợp nghệ thuật ánh sáng trong việc điểm thêm nét sang trọng cho không gian nghỉ ngơi khiến không gian thoáng đãng và rộng rãi hơn. Các chi tiết lụa mềm mại hài hòa với những chi tiết bọc da êm ái chắc chắn sẽ tạo cảm giác thoải mái và dễ chịu cho gia chủ.